Проект дома Хайтек 62
Проект дома Хайтек 62
Стоимость строительства
от 3 050 000 руб.
Стоимость строительства
от 3 050 000 руб.
Площадь
62 м2
62 м2
Размер
10 х 6,25
10 х 6,25
Срок строительства
31 день
31 день
Площадь
62 м2
62 м2
Размер
10 х 6,25
10 х 6,25
3 спальни
2 санузла
Срок строительства
31 день
31 день
3 спальни
2 санузла
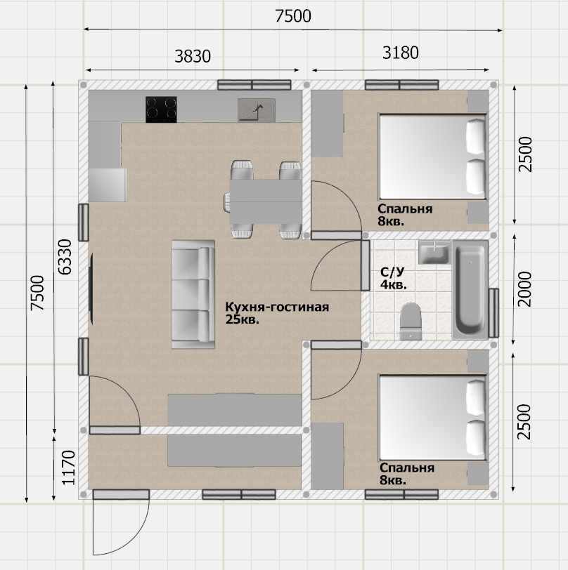
Планировки дома
Вы не просто приобретаете дом — Вы воплощаете мечту
Общая площадь:
62 м2
62 м2
Жилая площадь
?
?
Габариты
10 × 6,25 м
10 × 6,25 м
3
2
3
2
О проекте
Хайтек 62
Оптимальный вариант для семьи с детьми в формате «ничего лишнего — всё нужное».
Функциональность в современном архитектурном стиле.
Три спальни и два санузла — комфорт без очередей по утрам.
Планировка 10 × 6,25 м позволяет грамотно зонировать пространство: приватная зона и общая кухня-гостиная для семейных встреч. Есть прихожая — дом остаётся аккуратным и организованным.
Три спальни и два санузла — комфорт без очередей по утрам.
Планировка 10 × 6,25 м позволяет грамотно зонировать пространство: приватная зона и общая кухня-гостиная для семейных встреч. Есть прихожая — дом остаётся аккуратным и организованным.
О проекте
Хайтек 62
Оптимальный вариант для семьи с детьми в формате «ничего лишнего — всё нужное
Функциональность в современном архитектурном стиле.
Три спальни и два санузла — комфорт без очередей по утрам.
Планировка 10 × 6,25 м позволяет грамотно зонировать пространство: приватная зона и общая кухня-гостиная для семейных встреч. Есть прихожая — дом остаётся аккуратным и организованным.
Семейная ипотека
Подходит семьям с детьми.
Помогаем разобраться и сопровождаем процесс.
Помогаем разобраться и сопровождаем процесс.
Узнать, подхожу ли я под семейную ипотеку
Семейная ипотека
Подходит семьям с детьми.
Помогаем разобраться и сопровождаем процесс.
Помогаем разобраться и сопровождаем процесс.
Узнать, подхожу ли я под семейную ипотеку
Комплектация
дома Хайтек 62
Комплектация
дома Хайтек 62
тёплый контур
-Фундамент ( свайно-винтовой) + антикоррозийная защита.
-Теплый контур ( полы, стены, потолок) + огне\био защита, Ветрозащита, сетка от грызунов.
-Крыша ( перекрытия по госту ) + кровля в темный, матовый профлист с выбором цвета.
-Окна и дверь (пяти-камерные, энерго-сберегающие окна, двухконтурная входная дверь)
- Вентиляция.
- Водосточная система.
-Теплый контур ( полы, стены, потолок) + огне\био защита, Ветрозащита, сетка от грызунов.
-Крыша ( перекрытия по госту ) + кровля в темный, матовый профлист с выбором цвета.
-Окна и дверь (пяти-камерные, энерго-сберегающие окна, двухконтурная входная дверь)
- Вентиляция.
- Водосточная система.
предчистовая отделка
1. Коммуникации ( подвод/разводка по дому)
2. Фасадная отделка ( Сайдинг, мягкий фасад, ПВХ, Металл, проф-лист, фасадные панели, имитация бруса)
3. полусухая стяжка пола
4. Внутренняя отделка гипсокартоном.
2. Фасадная отделка ( Сайдинг, мягкий фасад, ПВХ, Металл, проф-лист, фасадные панели, имитация бруса)
3. полусухая стяжка пола
4. Внутренняя отделка гипсокартоном.
Под ключ
1. Коммуникации ( подвод/разводка по дому)
2. Фасадная отделка ( Сайдинг, мягкий фасад, ПВХ, Металл, проф-лист, фасадные панели, имитация бруса)
3. полусухая стяжка пола
4. Внутренняя отделка гипсокартоном.
2. Фасадная отделка ( Сайдинг, мягкий фасад, ПВХ, Металл, проф-лист, фасадные панели, имитация бруса)
3. полусухая стяжка пола
4. Внутренняя отделка гипсокартоном.
тёплый контур
-Фундамент ( свайно-винтовой) + антикоррозийная защита.
-Теплый контур ( полы, стены, потолок) + огне\био защита, Ветрозащита, сетка от грызунов.
-Крыша ( перекрытия по госту ) + кровля в темный, матовый профлист с выбором цвета.
-Окна и дверь (пяти-камерные, энерго-сберегающие окна, двухконтурная входная дверь)
- Вентиляция.
- Водосточная система.
-Теплый контур ( полы, стены, потолок) + огне\био защита, Ветрозащита, сетка от грызунов.
-Крыша ( перекрытия по госту ) + кровля в темный, матовый профлист с выбором цвета.
-Окна и дверь (пяти-камерные, энерго-сберегающие окна, двухконтурная входная дверь)
- Вентиляция.
- Водосточная система.
предчистовая отделка
1. Коммуникации ( подвод/разводка по дому)
2. Фасадная отделка ( Сайдинг, мягкий фасад, ПВХ, Металл, проф-лист, фасадные панели, имитация бруса)
3. полусухая стяжка пола
4. Внутренняя отделка гипсокартоном.
2. Фасадная отделка ( Сайдинг, мягкий фасад, ПВХ, Металл, проф-лист, фасадные панели, имитация бруса)
3. полусухая стяжка пола
4. Внутренняя отделка гипсокартоном.
Под ключ
1. Коммуникации ( подвод/разводка по дому)
2. Фасадная отделка ( Сайдинг, мягкий фасад, ПВХ, Металл, проф-лист, фасадные панели, имитация бруса)
3. полусухая стяжка пола
4. Внутренняя отделка гипсокартоном.
2. Фасадная отделка ( Сайдинг, мягкий фасад, ПВХ, Металл, проф-лист, фасадные панели, имитация бруса)
3. полусухая стяжка пола
4. Внутренняя отделка гипсокартоном.
Доверие и гарантии
Почему нам доверяют строительство своих домов
Количество
Более 50 построенных домов
качество
Гарантия 5 лет по договору
ответственность
Независимый технадзор
отчеты
прозрачная смета
открытость
постоянная связь с менеджером и фотоотчеты
Семейная ипотека
Возможность построить дом по программе семейной ипотеки
Количество
Более 50 построенных домов
качество
Гарантия 5 лет по договору
ответственность
Независимый технадзор
отчеты
прозрачная смета
открытость
постоянная связь с менеджером и фотоотчеты
Семейная ипотека
Возможность построить дом по программе семейной ипотеки
Оставьте
заявку —
— рассчитаем стоимость дома
под ваш участок
под ваш участок
Нажимая кнопку, вы соглашаетесь с политикой конфиденциальности.
Оставьте
заявку —
— рассчитаем стоимость дома
под ваш участок
под ваш участок
Нажимая кнопку, вы соглашаетесь с политикой конфиденциальности.